Make a Call : +8615559090996
Get A Estimate : senko@fjsenko.com
The Complete Guide to Brick Block Packing & Strapping Machines
In the demanding world of construction materials, brick and block packaging is the final, critical frontier. Every brick that shifts, cracks, or arrives damaged represents lost revenue and compromised project timelines. For decades, manual strapping was the standard, but it is increasingly being replaced by specialized, automated machinery designed to handle the immense weight, abrasive surfaces, and strict stability requirements of masonry products.
This guide explores the technology that is revolutionizing how bricks are prepared for shipment, ensuring they arrive on site ready for the job.

Why Brick Packaging Demands Specialized Machinery
Packaging bricks is a unique challenge. Their substantial weight (a single pallet can exceed 2,000 kg) and rough texture create high friction that can quickly degrade standard packaging materials. The primary goal is load stability—preventing movement during the jarring movements of transport, which can cause product damage, pallet collapse, and safety hazards. Automated strapping and packing machines are engineered specifically to solve these problems, applying consistent, high-strength restraint that manual methods cannot match.
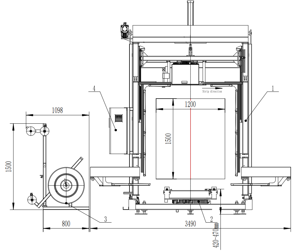
Core Machine Types for Brick Packaging
Primarily, two advanced machine types dominate modern brick packaging lines: Automatic Pallet Strappers and Cross-Arm Strapping Machines.
1. Automatic Pallet Strapping Machines
These are heavy-duty, fully automated systems designed to secure pre-assembled pallets of bricks. They typically feature a robust steel frame that forms a "gate" through which the pallet passes. A strapping head, mounted on a moving carriage or gantry, applies polyester (PET) strapping in vertical, horizontal, or cross patterns.
· How They Work: The process is fully automated. A loaded pallet enters via conveyor. Sensors detect its position, and the machine applies, tensions, and heat-seals the straps with precise, repeatable force before ejecting the secured load.
· Best For: High-volume production facilities with standardized pallet sizes, seeking maximum throughput and labor savings.
2. Cross-Arm (or "Sword-Type") Strapping Machines

These versatile machines are characterized by a movable "sword" or arm that physically carries the strapping around the load. This design is particularly effective for creating stable, pallet-less brick cubes and for applications requiring very tight bundling.
· How They Work: The machine's cross-arm extends, threads the strap through a pre-defined path around the stationary brick stack, retracts, and then tensions and seals the strap. The modular design allows the frame size to be customized.
· Best For: Operations requiring flexible packaging formats, including pallet-less bundles, or those with space constraints where the load must be packed in a fixed position.
3. Additional Technologies in a Complete Line
Modern systems often integrate more than just strapping:
· Six-Side Wrapping Machines: For supreme protection against moisture, dust, and UV exposure, some lines add a stretch film wrapping station that encapsulates the entire brick cube in a protective plastic shell.
· Robotic Handling: Industrial robots are increasingly used for de-stacking bricks from kiln cars and arranging them into precise layers or packs before strapping, maximizing flexibility and gentle handling.
Key Technical Specifications and Performance
When evaluating these machines, several technical factors are critical:
· Strapping Material: High-tensile Polyester (PET) strapping is the industry standard for its superior strength, durability, and resistance to abrasion and weather. Common widths for heavy brick loads are 12mm and 16mm.
· Tension Force: Machines must generate significant, electronically controlled tension to secure loads, often ranging from 5000 N (approx. 510 kgf) for pallet strappers to systems capable of over 4000 N for specialized applications.
· Throughput Speed: Efficiency is key. Automatic pallet strappers can typically process 15-20 pallets per hour, with a single strap cycle taking 15-30 seconds. More advanced modular systems can achieve cycle times as fast as 6 seconds per strap.
· Customization: Machines are rarely one-size-fits-all. They are adapted to handle specific pallet dimensions (common ranges: 600-1200mm wide, 800-2400mm long) and varying load heights.
Tangible Benefits for Your Operation
Investing in automated brick packaging technology delivers measurable returns:
· Enhanced Product Integrity: Automated tension control creates a tighter, more uniform package that dramatically reduces brick movement, chipping, and breakage during transit. This leads directly to fewer customer complaints and less waste.
· Substantial Labor Savings: Automating a strenuous, repetitive task frees workers for higher-value roles. One machine can replace multiple manual strapping stations, boosting overall line efficiency.
· Improved Workplace Safety: Eliminating manual handling of heavy straps and tools reduces the risk of musculoskeletal injuries like strains and sprains. Creating consistently stable loads also makes them safer for forklift operators to move.
· Reduced Operational Downtime: Modern systems like the modular Z-20 are designed for easy maintenance. Key components can be swapped out in minutes without heavy lifting equipment, keeping your production line running.
Implementation and Integration Considerations
Successfully integrating this technology requires planning:
1. Line Compatibility: Assess how the machine will interface with existing conveyors, brick stackers, and warehouse logistics. Floor space, height clearances, and power supply (typically 415V 3-phase) must be verified.
2. Material Selection: Partner with your supplier to select the optimal PET strapping grade, width, and thickness for your specific brick weight and stability requirements. The right consumable is crucial for performance.
3. Training and Support: Ensure operators and maintenance staff receive comprehensive training on machine operation, safety protocols (including emergency stops and guard systems), and routine preventive maintenance to ensure longevity in dusty brick plant environments.
The Future of Brick Packaging
The trend is toward fully integrated, smart packaging lines. Imagine a system where robotic arms depalletize and arrange bricks, sensors inspect for defects, a strapping machine applies custom-tensioned restraints based on load weight, and a final wrapper applies a protective and branded film—all with minimal human intervention and data fed to a central monitoring system.
This level of automation, as seen in advanced installations globally, is no longer a futuristic concept but a tangible path to greater resilience, efficiency, and quality in the heavy clay industry.
If you are looking to upgrade your brick packaging operations, the best first step is to consult with a specialized equipment provider. They can analyze your specific products, volume, and site constraints to recommend the optimal automated strapping solution. For further details on specific machine models and integration case studies, reviewing technical documentation from leading manufacturers is highly recommended.