Make a Call : +8615559090996
Get A Estimate : senko@fjsenko.com
A solid waste brick-making production line is a system that converts solid waste into building bricks. It employs frequency-modulated amplitude-modulated vibration technology to achieve high density and energy savings in non-fired recycled bricks. Our waste brick-making machine can produce various types of non-fired recycled bricks and can be molded according to requirements.
Solid Waste Brick/Block Production Line (Model: GFZX-2000)
Fully automated brick making production line, solid waste brick making production line, construction solid waste production line.
Layout of Projects:
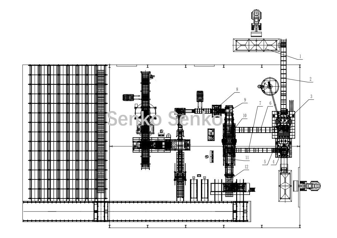
Solution one: The curing kiln has one opening side, and it is parallel to other equipment

| 1, Batching machine | 2, Raw meterial conveyor | 3,Base material mixer | 4, Pigment Mixer | 5,Vibrating screen | 6, Base mixture conveyor |
| 7,Pigment mixture conveyor | 8, Pallet loading | 9,Pallet feeder | 10, Forming machine | 11,Conveyor | 12,Stacking machine |
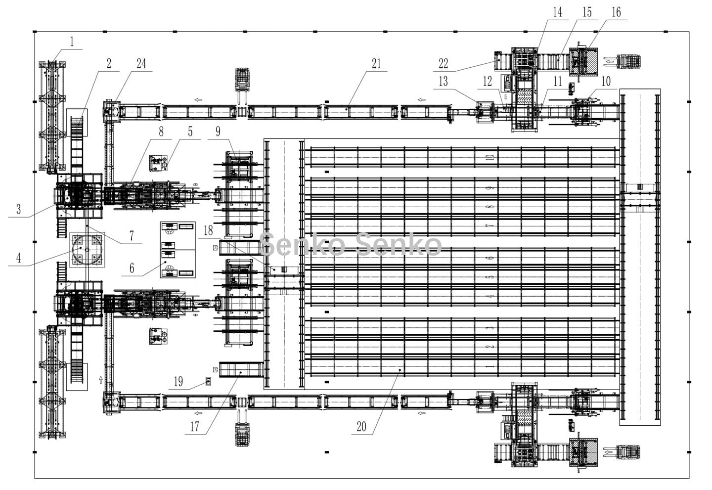
Solution two: The curing kiln has an entrance and an exit. the entrance of curing kiln is facing the rest of machines.

| 1, Batching machine | 2, Base material conveyor | 3, Mixer | 4, Cement silo | 5, Oil tank |
| 6,E-control cabinet | 7, Spiral conveyor | 8, Forming machine | 9, Palletizer with brick | 10, Pallet lift |
| 11, Brick pallet separator | 12, Empty Pallet conveyor | 13,Palletizer without brick | 14, Brick stacker | 15, Stacks conveyor |
| 16,Lower rotary stripping machine | 17, Transfer cart | 18,RGV | 19, Charging station | 20, Curing kiln |
| 21,Empty pallet recycling system | 22, Tray storage rack | 24, Hydraulic pallet loading |
Solution three: The curing kiln has one opening side, and it is facing the rest of machines.

| 1,Batching machine | 2, Base material conveyor | 3, Bas material storage tank | 4,Spiral conveyor | 5,Bas material mixer |
| 6, Bas mixture conveyor | 7,Pallet loading | 8,Hydraulic station | 9, E-control system | 10,Pallet feeder |
| 11,Forming machine | 12,Pallet recycling | 13, Pallet transferring | 14, Palletizer | 15,transfer cart |
| 16,Charging station | 17, RGV | 18, Pallet stack conveyor | 19, Pallet lift | 20, Brick Pallet conveyor |
| 21, Palletizer | 22, Brick stacking machine | 23, Lower rotary packing | 24, Stack conveyor | 25, Curing kiln |
Product Advantages:
1. Raw materials are inexpensive, widely available, and have low transportation costs. Brick-making machines are relatively inexpensive and supported by national policies, resulting in significant social and economic benefits.
2. The produced bricks have high strength and good performance, effectively saving land resources and promoting the structural adjustment of the building wall materials industry.
Application Scenarios

Tags :