Make a Call : +8615559090996
Get A Estimate : senko@fjsenko.com
A wall and floor block production line with steel brick racks is an automated equipment combination used in the production of wall and floor tiles. It enables continuous operation of the production process, including a series of steps from tile placement, conveying, curing, processing to finished product packaging, improving production efficiency and product quality. By setting up a curing mechanism, it not only utilizes a conveyor motor to transport the wall and floor tiles, but also uses an external water pump connected to a curing water source and curing nozzles to cure the tiles. A blower, equipped with air blades, quickly removes water from the surface of the tiles.
Wall & Floor Block Production Line with steel brick racks (Model: QDZX-2000)
Fully automated brick production line, wall and floor tile production line.
Layout of the Projects:
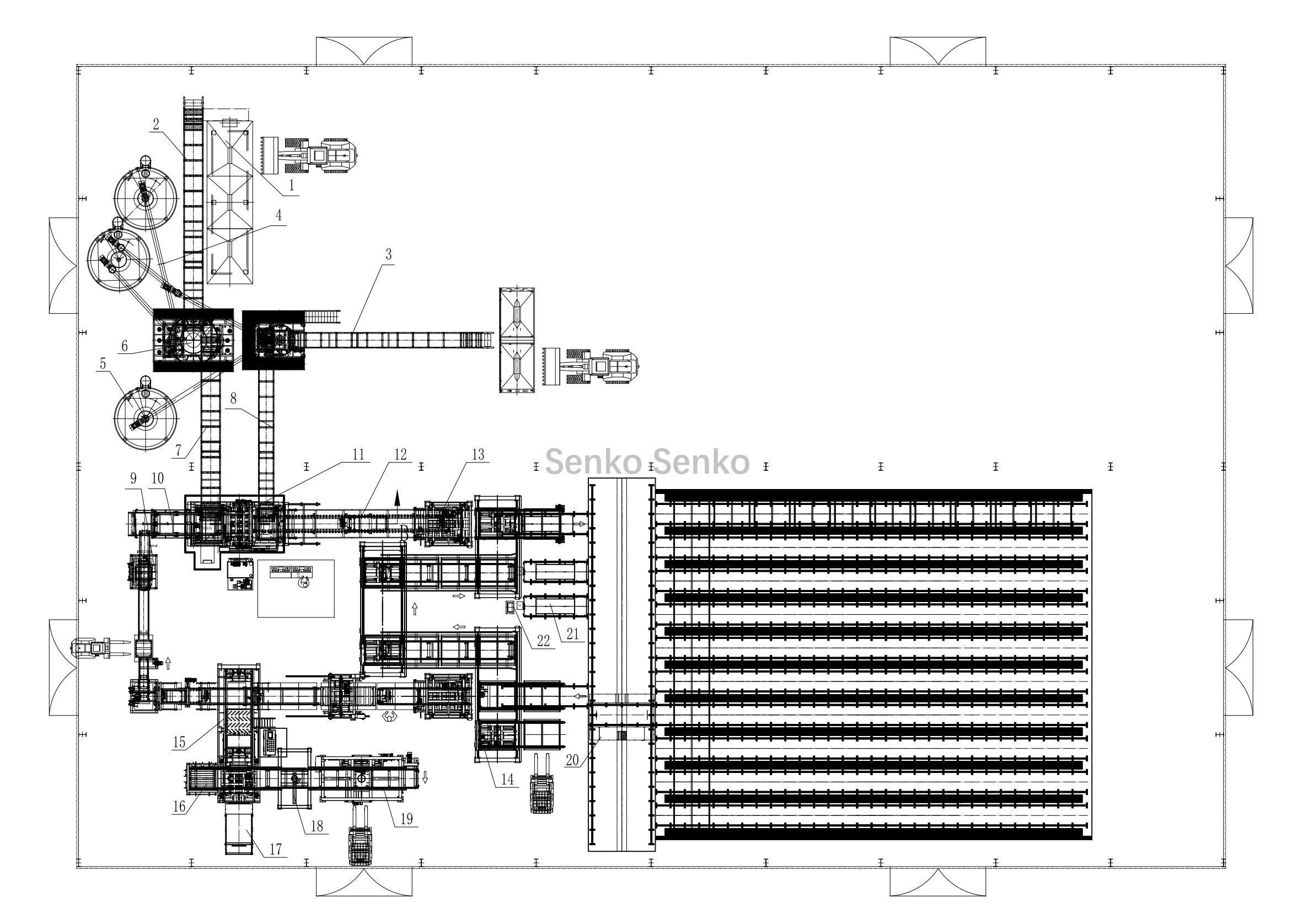
Solution one: The curing kiln has only one opening side,and it is facing the rest of the machine.

| 1, Batching machine | 2,Base material conveyor | 3,Base material conveyor | 4,Spiral conveyor | 5,Spiral conveyor | 6,Mixer |
| 7,Base material conveyor | 8,Base material conveyor | 9, Hydraulic pallet feeder | 10,Pallet feeder | 11,Block forming machine | 12,Block conveyor |
| 13,Pallet lift | 14, Rack transfer | 15,Block stacker | 16,Wooden tray storage | 17,Film wrapping machine | 18,Film lying machine |
| 19,Upper rotary stripping machine | 20,RGV | 21,Transfer cart | 22, Charging station |
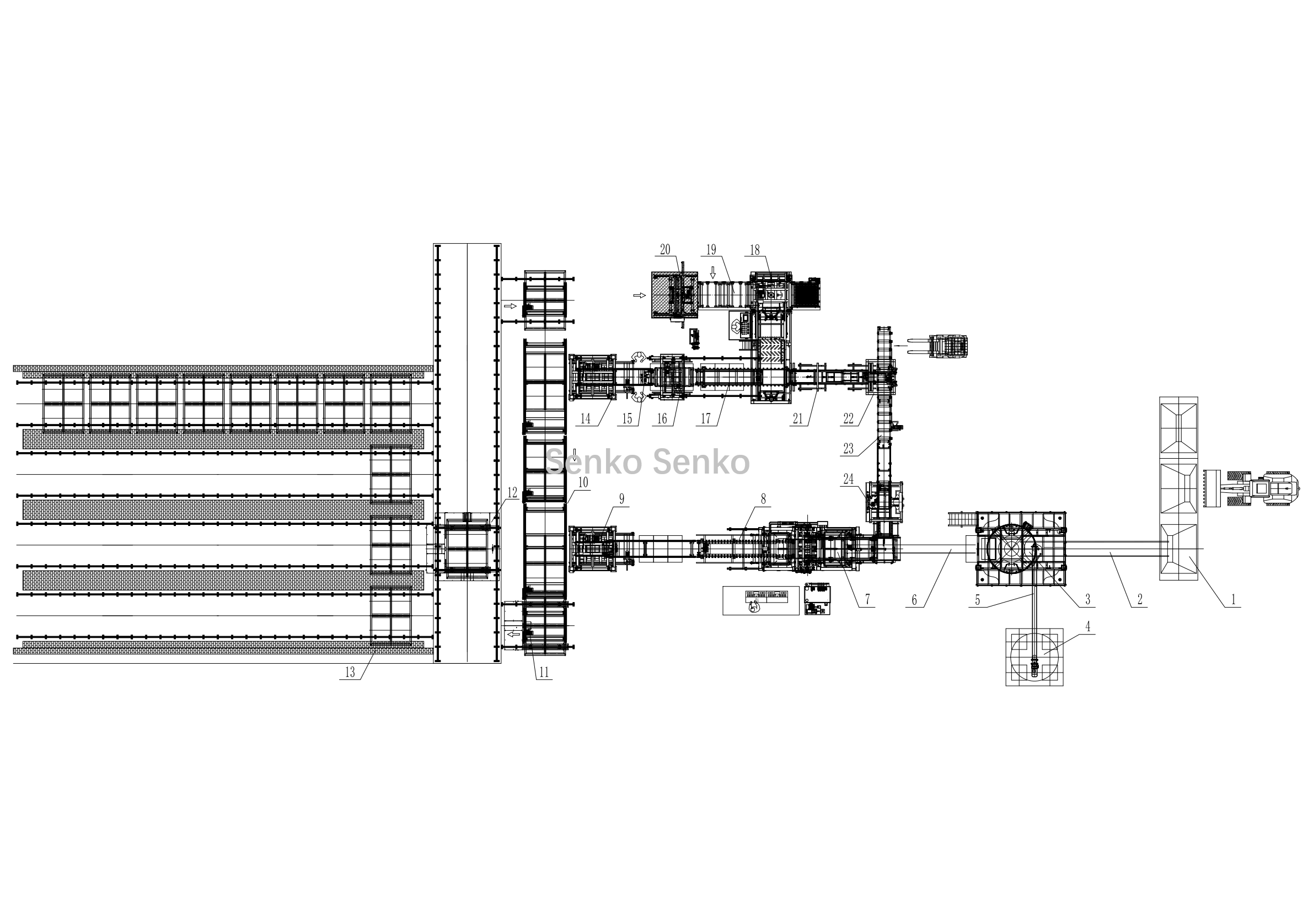
Solution two: The curing kiln has only one opening side,and it is facing the rest of the machine.

| 1, Batching machine | 2, Base material conveyor | 3, Mixer | 4,Cement silo | 5, Cement conveyor | 6, Mixture conveyor |
| 7, Forming machine | 8, Pallet conveyor | 9, Pallet loading in rack | 10, rack transfer | 11, rack feeding on RGV | 12, RGV transfer cart |
| 13, Block curing kiln | 14, Pallet unloading from rack | 15, Conveyor before lift | 16, Pallet lift | 17, Block and pallet separator | 18, Block stacking machine |
| 19, Stack conveyor | 20, Packing stripping machine | 21, Empty pallet conveyor | 22,Palletizer | 23, Pallet stack conveyor | 24, Pallet loading |
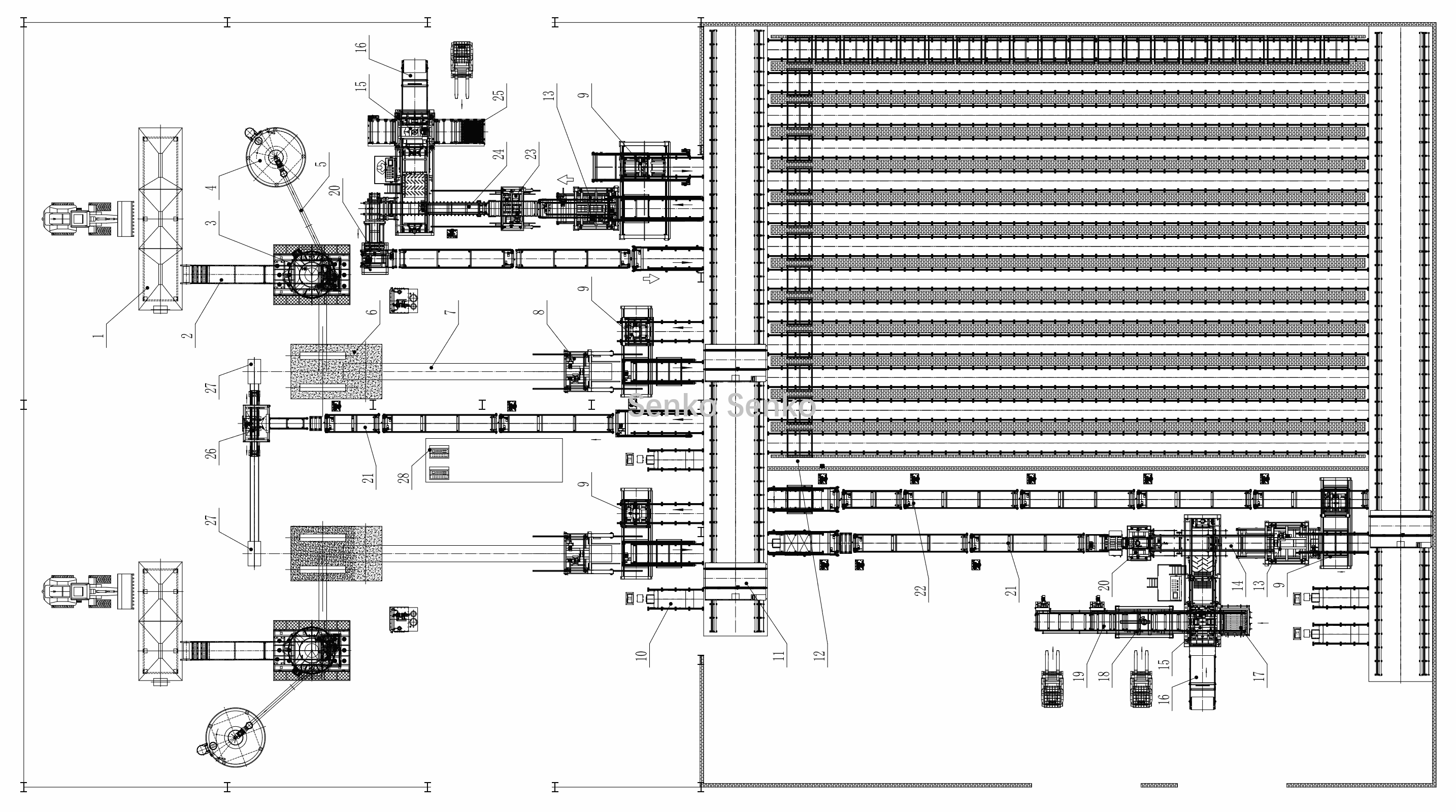
Solution three: One curing kiln with two sets of forming and packing machines for different types of products.

| 1,Batching machine | 2, Base material conveyor | 3, Mixer | 4, Cement silo | 5, Spiral conveyor | 6, Forming machine |
| 7, Brick pallet conveyor | 8, Pallet feeding onto rack | 9, Rack transfer unit | 10, Transfer cart | 11,RGV | 12, Curing kiln |
| 13, Pallet unfeeding from rack | 14,Brick and pallet separator | 15, Brick stacker | 16, Film lying machine | 17, Tray storage frame | 18, Film wrapping unit |
| 19, Stripping machine | 20, Empty palletizer | 21, Pallet stack conveyor | 22, Empty rack conveyor | 23, Brick pallet lift | 24, Brick pallet converyor |
| 25, Stripping machine | 26,Pallet feeding onto the line | 27, Pallet storage frame |
Product Advantages:
1. Improve production efficiency: Automated production processes reduce manual intervention and labor intensity, enabling continuous and efficient production, which greatly increases the output of wall and floor tiles;
2. Ensure product quality: Precise tile loading, conveying and processing control, as well as a stable curing environment, help ensure the quality indicators of wall and floor tiles, such as dimensional accuracy, flatness and strength, and reduce the defect rate.
3. Reduce production costs: Although the equipment investment is large, in the long run, it can effectively reduce the production cost per unit product by improving production efficiency and reducing labor costs and raw material waste;
4. Improve production safety: It reduces the direct contact between humans and dangerous production processes such as high temperature and high speed operation, reduces the incidence of workplace accidents, and improves the safety of the production process.
Application Scenarios

Tags :